芝生保護材 リサイクル製品 エコユニットベース
地球環境にやさしい、ポリプロピレン樹脂リサイクル材使用!
緑化駐車場芝生保護材 芝生舗装材 個人宅配送対応品! 屋号のない事業主または個人さまは、運送会社営業所止めをお勧めします。 離島や一部地域では、お届けできないエリアもございます。詳しくはお問い合わせ下さい。 緑豊かな駐車場が地球温暖化を防止 最近はSDGsの取り組みでも、地球温暖化対策として駐車場の緑化が進んでいます。 集合住宅施工例 工場施工例 駐車場に対応できない製品の例 耐荷重性の低い一般的な芝生保護材を駐車場に使用すると、ちぎれてボロボロになります。 エコユニットベースを使用した緑化駐車場は緑化可能率94%で、他の緑化駐車場工法に比べて、緑地増加に効果的です。 ヒートアイランド現象は都心部の気温が郊外に比べて島状に高くなる現象です。原因として、夏季のアスファルト舗装の高温化があげられますが、これに対し緑化駐車場は蒸発散作用により表面温度が低く保たれ、ヒートアイランド現象緩和に貢献します。 エコユニットベースの支持脚は特殊なリブ構造であり、車両荷重に対しても十分な強度を発揮します。また、エコユニットベース同士の連結はジョイント式であり、簡単に接続できます。 芝生の育成に必要な土壌への空気供給を、支持脚にスリット部を設けることにより可能にしました。 エコユニットベースは、再生ポリプロピレンを使用したリサイクル製品です。有害な重金属(カドミウム、鉛、六価クロム、ヒ素、セレン、総水銀)が検出されなかったことを平成14年環境省令第29号、平成15年環境省告示第19号に準拠した試験により確認しています。 STEP1 クッション砂敷き均し 砕石の上にサンドクッションを敷設し、不陸調整を行う。 STEP2 エコユニットベース敷設 寸法調整(ノコギリで切断可能) STEP3 客土入れ 客土を投入し、敷き均しを行う。トンボ等により、エコユニットベース支持脚頂部とほぼ同じ高さにする。 STEP4 張 芝 芝生を張り、散水しながら振動ローラーでエコユニットベース支持脚頂部が露出するまで転圧を行う。 鋸で簡単に切断でき、サイズ調整が可能。 官公庁駐車場 住宅駐車場 店舗駐車場 施設駐車場 公園駐車場① 公園駐車場② ※1 代表値(保証値ではありません) エコユニットベース全体写真 エコユニットベース梱包仕様 支持脚にスリットを設け、土壌へ空気を供給し芝生の育成を助けます。 支持脚の頂部には、丸みのついた溝を入れ、滑りにくく、自然で立体感あふれる形状です。 設計・使用上の注意 エコユニットベースは緑化駐車場に使用する芝生保護材です。緑化駐車場の芝生保護材以外の目的で使用しないでください。 タイヤのスエギリや切り返しが多い場所等の芝生が擦り切れたり裸地化することが予想される部位等では、舗装等を併用することをお勧めします。 凍上の可能性のある地域では砕石層を300㎜以上にしてください。 耐荷重10t車以下(総荷重20t以下)です。 エコユニットベースを使用した緑化駐車場には、駐車車両並びに関係者は立ち入らないようにしてください。 エコユニットベースを使用した緑化駐車場では、支持脚に引っ掛かるなどして転倒し怪我をする恐れがあります。自転車のタイヤが細かい乗り物での通行やハイヒール等の不安定な履物による歩行の際は十分にご注意ください。 駐車頻度が高いと芝生の育成量が減少し、裸地化が見られる場合がありますのでご注意ください。 カーポート下など紫外線がカットされる場所では、芝生が枯れる場合があります。 施工上の注意 路床点圧はアスコン舗装よりも、しっかりと行ってください。 播種の場合は、エコユニットベースの支持脚頂部よりも高く客土を入れ、転圧を行ってください。 凍上の可能性のある地域では砕石層を300㎜以上入れてください。 芝生を張った後の転圧はエコユニットベースの支持脚頂部が露出するまでしっかりと行ってください。 施工中及び芝生養生中はエコユニットベースの上部には工事車両などを走行させないでください。 客土の不足や流出、過剰な締固め等により、エコユニットベースの支持脚を突出させないでください。 維持管理上の注意 芝生保護のため適度な日照を与えてください。 施肥は3回/年、目土は1回/年以上行ってください。 施工後は芝生が客土に根付くまで散水し、かつ十分に養生してください。(芝生養生中は車両を乗り入れないようにしてください。) 施工後は必要に応じて散水してください。ただし夏季における晴天時の散水は日中を避け、朝または夕方にしてください。 耐荷重10t車以下(総荷重20t以下)です。 車両の急発進、急停車、タイヤのスエギリ等は避けてください。 駐車頻度が多いと芝生の生育量が減少し、裸地化が見られる場合がありますのでご注意下さい。芝生の状態により、養生期間を与えてください。 エコユニットベースの支持脚が地表面から突出すると、破損したり、転倒しやすくなりますので適切に管理してください。 保管・取り扱い上の注意 商品は高く積み上げすぎると荷崩れを起こし、ケガをする可能性があります。 ポリプロピレン樹脂製ですので、保管時・施工時にはタバコなどの火気を近づけないでください。 運搬にあたっては、商品を損傷しないよう注意してください。 トラックの荷台から投げ降ろしたり、引きずったりしないでください。商品が破損する可能性があります。 直射日光が当たらないように保管してください。 エクステリアの雑記 駐車スペースの緑化舗装について 都市部でも広い面積占めている駐車場は、近年は新たな緑化スペースになっています。この記事では、そのメリットや、施工方法、注意点、資材選びのポイントなどを詳しくご紹介しています。 土木資材の雑記 土木工事用不織布について 分離・緩衝・保護・排水・補強など様々な工事での活用例を参考に商品を紹介しています。河川や港湾護岸の吸出し防止工、洗掘防止工、盛土の層厚管理、ドレーン層材、透水シート、各種セパレーター等、必要とされる機能や目的に対応した土木工事用不織布シートをお探しいただけます。 DIYで土留め簡単施工術 雨が降って斜面などから土の流出を防ぐためには、土留め対策が有効的です。ここではDIYで簡単に土留めを施工できる方法を施工難易度別に紹介しています。また施工のために必要な資材等も具体的に紹介しています。
「エコユニットベース」とは
再生ポリプロピレンを使用した「エコユニットベース」は、他の施工方法と比べ駐車場を効率良く緑化可能な芝生保護材です。
エコユニットベースは10t車以下であれば、特殊なリブ構造の支持脚で、車両荷重から芝生をやさしく保護できます。特徴
緑化可能率94%
ヒートアイランド現象対策に貢献
強度・耐久性に優れ、施工が簡単
芝生の育成を補助
環境にやさしいリサイクル製品
施工方法
施工手順とポイント
(砂厚30㎜、必ず転圧仕上げを行う)
※どちらの方向からも嵌合できます。
※機械施工は不可。
※養生期間中は車両の乗り入れ不可
施工断面
サイズ調整
施工写真
製品仕様
製品詳細
名 称
エコユニットベース
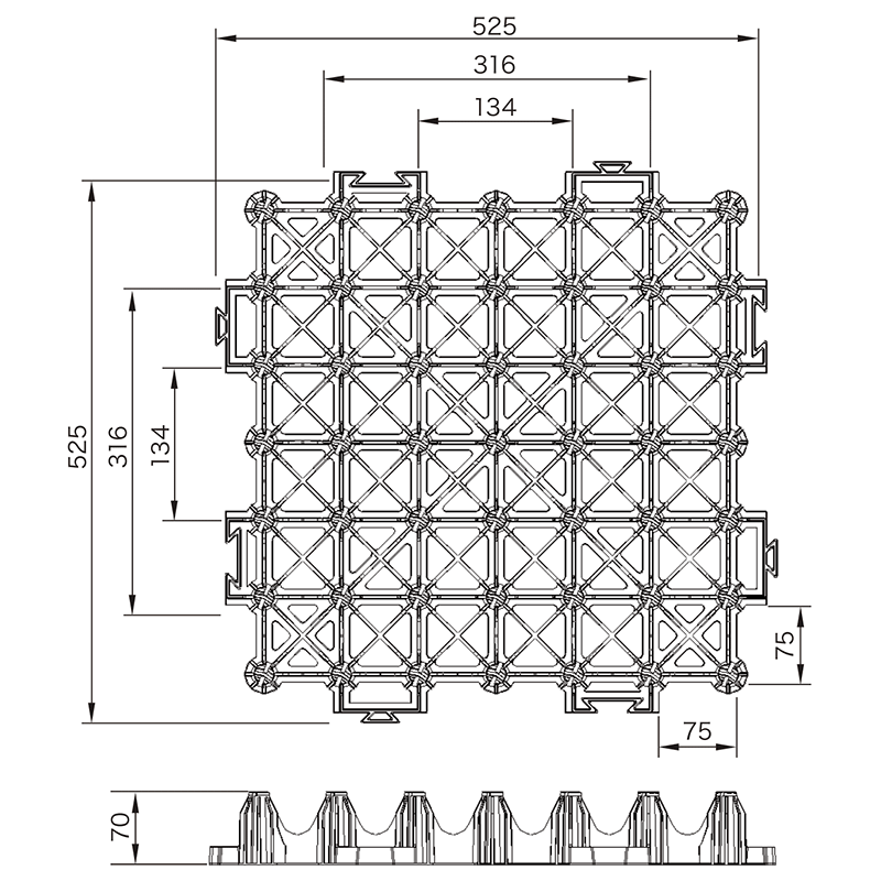
製品寸法(㎜)
525×525×70
重 量(㎏)
約1.9
材 質
再生ポリプロピレン
圧縮強度※1
401kN/枚(1458kN/m²)
耐寒性※2
10℃
耐熱性※2
100℃
梱包単位
4枚
※2 プラスチックデータハンドブックより抜粋
製品写真
関連商品













