プラスチック製擬木 リサイクル製品 ロープ柵(くぬぎ肌) 優しく、そしてしっかりと人々に安心を与える柵を提供します 柵・フェンス エコマーク認定番号 : 第07131002号(再生プラスチック70%以上) 設置場所を選ばず、簡便性に優れており、 平地にも傾斜地にも設置可能な外柵です。 ※天然木のテクスチャーとプラスチックの耐久性・軽量性を併せ持つロングセラー商品。 Point1 加工性 木工用工具を使用すれば、切断や穴あけといった天然木と同様の加工が可能です。 Point2 耐久性 プラ擬木の主な素材は、ポリエチレン、ポリプロピレンの混合物です。この2つの樹脂は、炭素と水素だけのシンプルな構造であり、空気や水・紫外線に対して非常に安定した性質を示します。 Point3 耐薬品性 主原料として使用されているオレフィン系樹脂(ポリエチレン、ポリプロピレン)は、エチレンとプロピレンの直鎖重合体で、化学的に安定性の高い物質です。 Point4 耐水性 プラ擬木はプラスチック100%ですので水を吸収しません。 天然木との比較 コンクリートとの比較 素材別リサイクルの流れ <サンシャインウェザーメーターによる促進耐候試験結果> 色調変化 0時間
500時間
1,000時間 曲げ強度保持率変化 プラ擬木は、サンシャインウェザーメーター2000時間促進耐候試験において、全てが曲げ強度保時率90%以上を実現。耐久性の高さを証明しています。 グラフおよび表中の値は実測値です。保証値ではありません。 <基本物性> グラフおよび表中の値は実測値です。保証値ではありません。 <製品仕様> ロープ柵 端末支柱には芯材(鋼管φ48.6)が入っています。折れ点、端部にご使用下さい。 カラー ダークブラウン 外観 クヌギ肌模様 図面データ 注意事項 ロープは別途手配願います。孔の標準径は16mmです。 個人宅配送対応品! 離島や一部地域では、お届けできないエリアもございます。詳しくはお問い合わせ下さい。 場合によって配送料が割り増しになることがございますので、ご了承下さい。 チャーター便指定の場合、注文確定後の変更は出来ません。(運送方法について) 前田工繊株式会社 ※送料や納期については購入手続き後のご案内となるため、当サイトでは仮注文受注システムを採用しております。
ロープ柵とは
さまざまな用途に対応します。
外見の印象とともに手触りも優しいプラ擬木は、柵の素材に最適で、ささくれだった木材や欠けたコンクリートによるケガも起こりません。特徴
釘やビスでの固定も容易に行うことができます。
さまざまな環境や用途に対応が可能で腐らずメンテナンスが軽減します。
酸やアルカリなどの薬品に対する耐性に優れています。また環境に対する安全性について有害な物質はできません。
水辺だけでなく水中での使用にも敵しています。
規格・特性
比重
曲げ強度
曲げ弾性率
線膨張係数
単位
―
MPa
GPa
×10-5/℃
プラ擬木
0.96
24.2
1.02
15.5
品名
品番
標準寸法(㎜)
標準重量(kg)
中間支柱
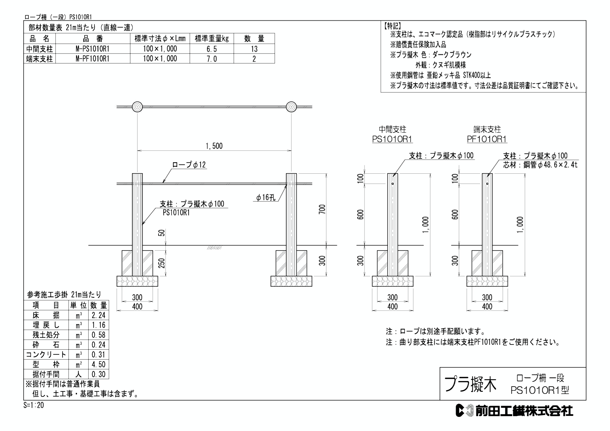
ロープ柵(一段)PS1010R1M-PS1010R1
φ100×L1,000
6.5
端末支柱
ロープ柵(一段)PS1010R1M-PF1010R1
φ100×L1,000
7.0
中間支柱
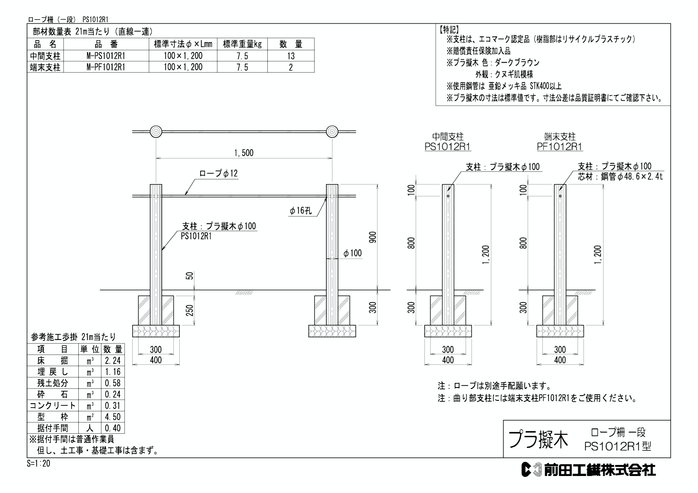
ロープ柵(一段)PS1012R1M-PS1012R1
φ100×L1,200
7.5
端末支柱
ロープ柵(一段)PS1012R1M-PF1012R1
φ100×L1,200
7.5
中間支柱
ロープ柵(二段)PS1012R2M-PS1012R2
φ100×L1,200
7.5
端末支柱
ロープ柵(二段)PS1012R2M-PF1012R2
φ100×L1,200
7.5
※チャーター便指定の場合、注文確定後の変更は出来ませんので、ご注意下さい。(配送方法・納期について)



土木資材の雑記
土木工事用不織布について
分離・緩衝・保護・排水・補強など様々な工事での活用例を参考に商品を紹介しています。河川や港湾護岸の吸出し防止工、洗掘防止工、盛土の層厚管理、ドレーン層材、透水シート、各種セパレーター等、必要とされる機能や目的に対応した土木工事用不織布シートをお探しいただけます。
DIYで土留め簡単施工術
雨が降って斜面などから土の流出を防ぐためには、土留め対策が有効的です。ここではDIYで簡単に土留めを施工できる方法を施工難易度別に紹介しています。また施工のために必要な資材等も具体的に紹介しています。
エクステリアの雑記
駐車スペースの緑化舗装について
都市部でも広い面積占めている駐車場は、近年は新たな緑化スペースになっています。この記事では、そのメリットや、施工方法、注意点、資材選びのポイントなどを詳しくご紹介しています。












